Plano de vivienda contemporáneo del noroeste con diseño de concepto abierto

Detalles del plano de la casa

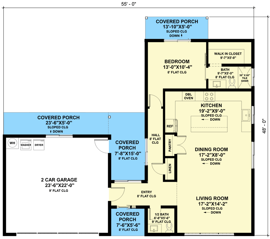
Dormitorios: 1
Baños Completos: 1
Medios Baños: 1
Medios Baños: 1
Medios Baños: 1
Historias: 1
Garajes: 2
Total Area: 1933 ft2
Área habitable: 1073 pies2

Totalmente personalizable

Galería de fotos

Planos de planta

Descripción

Bella Collina

parque de invierno

Windermere

orlando

lago nona

Horizonte Oeste

¡Budron Homes es un ganador del Desfile de Casas!
Noticias recientes