Casa de transporte contemporánea con apartamento tipo estudio

Detalles del plano de la casa

Dormitorios: 1
Baños Completos: 1
Medios Baños: 1
Medios Baños: 1
Medios Baños: 1
Historias: 2
Garajes: 3
Total Area: 2597 ft2
Área habitable: 909 pies2

Totalmente personalizable

Galería de fotos

Planos de planta

Descripción

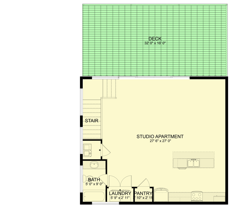
This Contemporary Carriage house presents clapboard siding topped by a shed-style roof.To the left, a large overhead door provides space for your RV, trailer, or larger vehicles, and includes a second overhead door on the rear elevation.To the right, a double garage can be found with a powder bath and access to the stairway.Upstairs, the studio apartment delivers 909 square feet of living space, and flows onto a sizable deck for additional outdoor space when entertaining.

Bella Collina

parque de invierno

Windermere

orlando

lago nona

Horizonte Oeste

¡Budron Homes es un ganador del Desfile de Casas!
Noticias recientes