House Plan Details

Bedrooms: 3
Full Bathrooms: 2
Half Bathrooms: 1
Half Bathrooms: 1
Half Bathrooms: 1
Stories: 2
Garages: 2
Total Area: 5690 ft2
Living Area: 2977 ft2

Fully Customizable

Photo Gallery

Floor Plans

Description

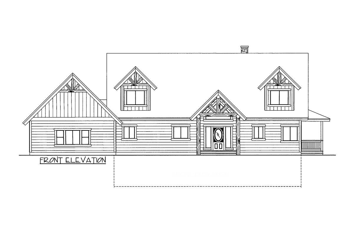
Introducing the “Julian” a Mountain Craftsman home plan that combines rustic charm with functional design, brought to life by the skilled team at Budron Homes. This plan features timber-framed gables and a captivating wraparound deck, designed to integrate seamlessly with Florida’s natural beauty.

The home is a haven for hobbyists, offering extra garage space ideal for a workshop, while extensive outdoor decking connects the living spaces, providing access from the great room, dining area, and master suite. The vaulted great room, reaching a majestic height of 25′, and the open layout flow effortlessly into the kitchen, where a cooktop island with an eating bar awaits culinary adventures.

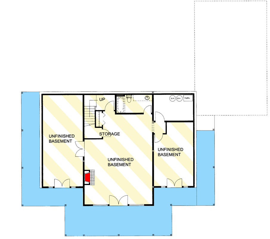
Upstairs, two bedrooms and a home office encircle a spacious loft, offering panoramic views of the great room below, with ceiling heights ranging from 6’2″ to 12’8″, adding to the home’s airy ambiance. An optional lower level can be finished to add another 1,805 square feet of living space, offering flexibility for future expansion.

Crafted by Budron Homes, the “Julian” is more than a house; it’s a retreat that captures the essence of rustic elegance, making it an ideal choice for those seeking a distinctive home in the Florida landscape.

Bella Collina

Winter Park

Windermere

Orlando

Lake Nona

Horizon West

Budron Homes is a Parade of Homes winner!
Recent News