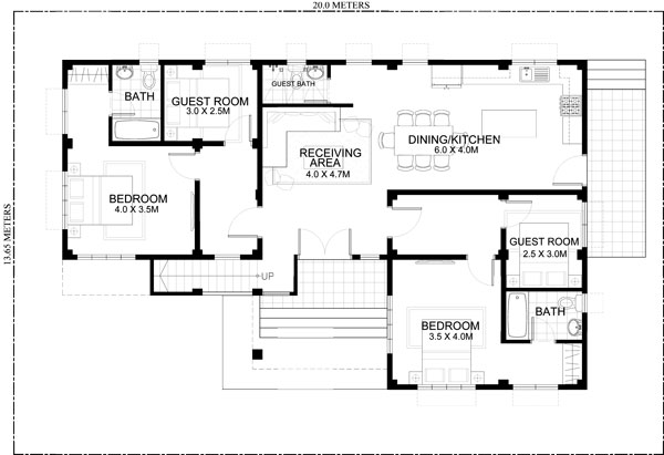
Four Bedroom One Story With Roof Deck

House Plan Details

Bedrooms: 4
Full Bathrooms: 2
Half Bathrooms: 1
Half Bathrooms: 1
Half Bathrooms: 1
Stories: 2
Garages: 0
Total Area: 2939 ft2
Living Area: 1819 ft2

Fully Customizable

Photo Gallery

Floor Plans

Description