Exclusive Modern Split Bedroom Modern Farmhouse Plan

House Plan Details

Bedrooms: 4
Full Bathrooms: 3
Half Bathrooms: 1
Half Bathrooms: 1
Half Bathrooms: 1
Stories: 2
Garages: 2
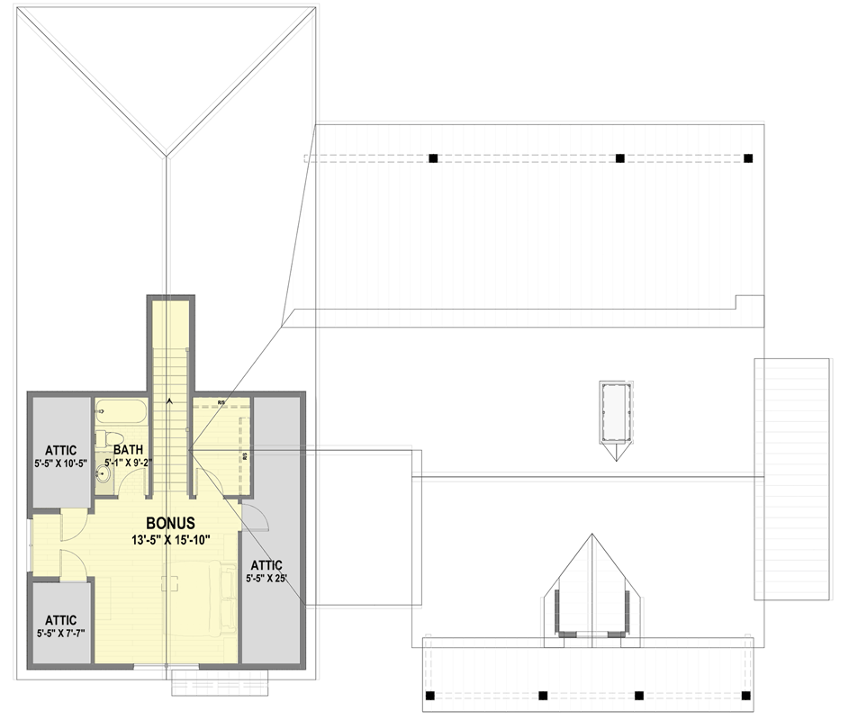
Total Area: 3579 ft2
Living Area: 2697 ft2

Fully Customizable

Photo Gallery

Floor Plans

Description