Contemporary Adobe

House Plan Details

Bedrooms: 3
Full Bathrooms: 2
Half Bathrooms: 0
Half Bathrooms: 0
Half Bathrooms: 0
Stories: 1
Garages: 2
Total Area: 2890 ft2
Living Area: 2034 ft2

Fully Customizable

Photo Gallery

Floor Plans

Description

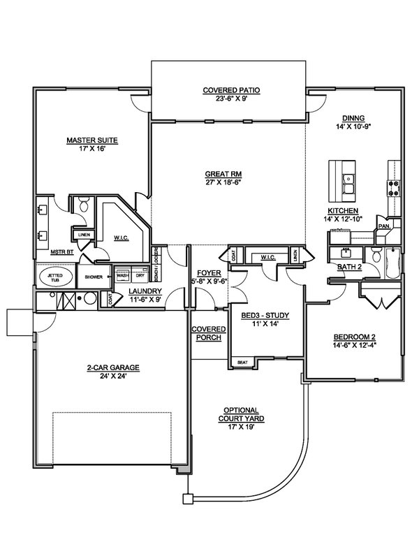
This expansive 2,034 square foot adobe dwelling offers a unique blend of modern design and practical living. The single-story layout prioritizes both style and functionality. Upon entering the grand foyer, boasting an impressive 11-foot-6-inch ceiling, you’ll be greeted by French doors leading to a dedicated home office, perfect for those who work remotely.

The true gem of this home lies in the luxurious master suite. Tucked away for ultimate privacy, it offers direct access to the rear patio, creating a seamless indoor-outdoor connection. The ensuite bathroom pampers with twin vanities, a separate toilet room, a spacious walk-in closet, an oversized soaking tub, and a grand shower with its very own linen closet.

The remaining two bedrooms share a conveniently located second bathroom, ideal for families or guests. Adding to the functionality, the oversized two-car garage can comfortably accommodate a full-sized truck. Upon entering from the garage, you’ll find a well-equipped laundry room/mudroom complete with a bench and storage lockers, perfect for keeping your active lifestyle organized.