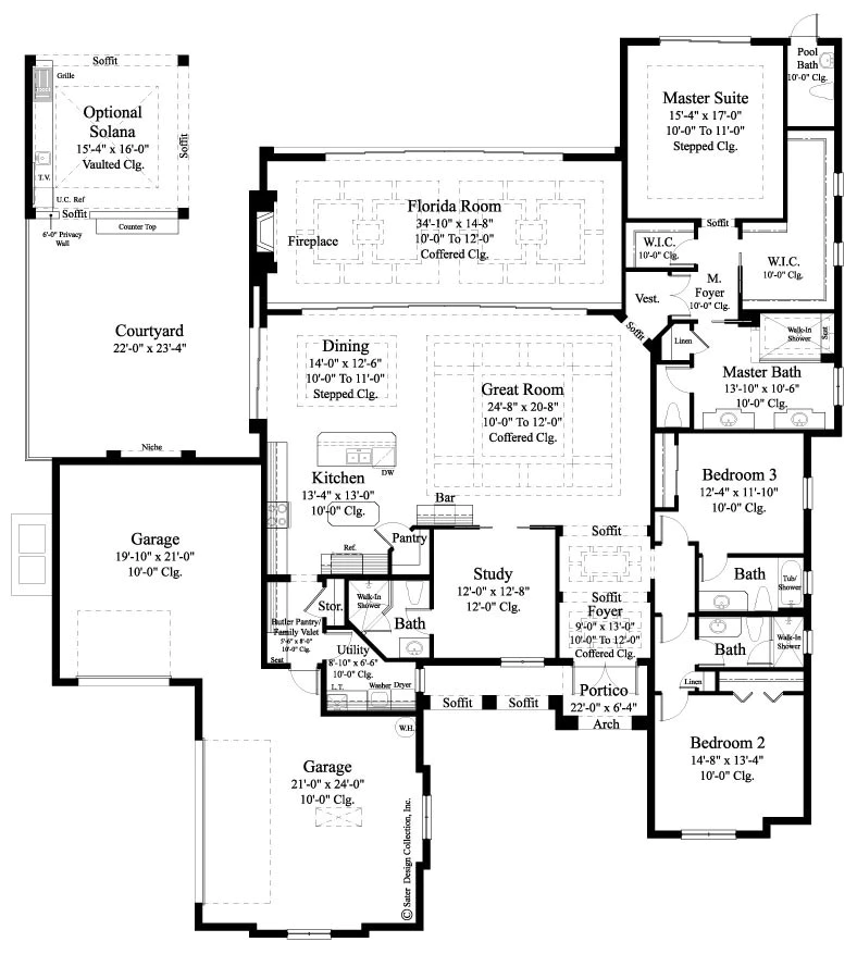
House Plan Details

Bedrooms: 3
Full Bathrooms: 4
Half Bathrooms: 1
Half Bathrooms: 1
Half Bathrooms: 1
Stories: 1
Garages: 3
Total Area: 4751 ft2
Living Area: 3394 ft2

Fully Customizable

Photo Gallery

Floor Plans

Description

Bella Collina

Winter Park

Windermere

Orlando

Lake Nona

Horizon West

Budron Homes is a Parade of Homes winner!
Recent News